Op een royaal perceel van maar liefst 421 m² bevindt zich deze goed onderhouden en gemeubileerde recreatiewoning, gelegen op het geliefde recreatiepark "Residence Belmonde". Deze instapklare woning beschikt over moderne voorzieningen zoals airconditioning (2019), een ruime berging en een eigen parkeerplaats. Het overdekte terras aan de achterzijde biedt een heerlijk uitzicht over de weilanden en is een ideale plek om in alle rust van de buitenlucht te genieten.
Recreatiepark "Residence Belmonde" biedt diverse faciliteiten, waaronder een zwembad, waardoor het verblijf hier aanvoelt als een permanente vakantie. Wifi is aanwezig en de servicekosten bedragen €187,- per maand, inclusief voorschot voor water, elektra, gas en afval.
Een ideale plek voor rustzoekers, natuurliefhebbers én mensen die comfort op prijs stellen! Nieuwsgierig geworden? Neem dan contact met ons op, kom kijken en ervaar zelf de rust en het comfort van deze fijne recreatiewoning!
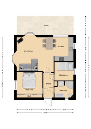
Indeling
Entree/hal met kastruimte met opstelplaats cv-ketel en meterkast, badkamer met wastafelmeubel, douche-inrichting met cabine, opstelplaats wasmachine/droger en wandcloset, 2 ruime slaapkamers waarvan 1 met een vaste kastenwand en airco (2019), ruime woonkamer met airco (2019(, open keuken met L-vormige inbouwkeuken voorzien van diverse inbouwapparatuur, overdekt terras met een afmeting van ca. 2.45 x 7.05 meter.
Overige verdiepingen
Bijgebouwen: Vrijstaande berging/fietsenschuur met een inwendige afmeting van ca. 2.30 x 2.66 meter; Luifel aan achterzijde met uitzicht over weiland 2.45 x 7.05 meter.
Bijzonderheden
Enkele wetenswaardigheden: - Groot perceel van 421 m²; - Eigen parkeerplaats + berging; - 2 slaapkamers aanwezig; - Meerdere faciliteiten op het park; - Wifi aanwezig; - De woning word gemeubileerd, gestoffeerd en met nagenoeg de gehele inboedel opgeleverd; - Prachtige uitzicht over de weilanden aan de achterzijde; - Sfeervolle tuin met overdekt terras aan de achterzijde; - Servicekosten € 187,-- per maand (incl. voorschot gas, elektra, water en afval).
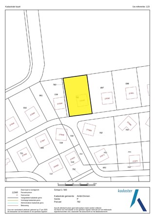
Kaart
Kenmerken
Overdracht
Referentienummer
06688
Vraagprijs
€ 149.000,- k.k.
Servicekosten
€ 60,-
Elektra
€ 20,-
Gas
€ 85,-
Water
€ 7,-
Inrichting
Ja
Inrichting
Gemeubileerd
Status
Verkocht
Aanvaarding
In overleg
Aangeboden sinds
Maandag 28 juli 2025
Laatste wijziging
Dinsdag 16 september 2025
Bouw
Type object
Woonhuis, bungalow, vrijstaande woning
Soort bouw
Bestaande bouw
Toegankelijkheid
Senioren
Bouwperiode
2004
Dakbedekking
Dakpannen
Type dak
Zadeldak
Isolatievormen
Dakisolatie Dubbel glas HR-glas Spouwmuren Vloerisolatie
Oppervlaktes en inhoud
Perceeloppervlakte
421 m²
Woonoppervlakte
53 m²
Inhoud
160 m³
Oppervlakte externe bergruimte
6 m²
Oppervlakte gebouwgebonden buitenruimte
17 m²
Indeling
Aantal bouwlagen
1
Aantal kamers
3 (waarvan 2 slaapkamers)
Aantal badkamers
1
Locatie
Ligging
Aan bosrand Aan park Aan rustige weg In bosrijke omgeving Open ligging Platteland Vrij uitzicht
Als u onze brochures wilt bekijken, willen we graag weten wie u bent. Log alstublieft in met uw bestaande account of vul uw contactgegevens in. Bedankt!