Verkocht onder voorbehoud:Kalkwijk 14, 7687 AX Daarlerveen - Foto
Verkocht onder voorbehoud
+63

Kalkwijk 14 7687 AX Daarlerveen € 439.000,- k.k.

  • Woonhuis
  • 5 kamers
  • 4 slaapkamers
  • 1 badkamer
  • Bouwjaar 1960
  • 5.260 m² perceeloppervlakte
  • 115 m² gebruiksoppervlakte
  • E Energielabel E

Beschrijving

Wat een plek! Deze goed onderhouden vrijstaande woning combineert ruimte, rust en privacy met verrassend veel gebruiksmogelijkheden – en dat alles op een uitzonderlijk royaal perceel van maar liefst 5.260 m² eigen grond.

Binnen ervaar je direct een prettige, verzorgde sfeer. De woning is praktisch ingedeeld en biedt volop comfort voor nu én later. Dankzij de aanwezigheid van een slaapkamer en badkamer op de begane grond is gelijkvloers wonen hier uitstekend mogelijk. Daarnaast zorgt de extra kantoor-/hobbyruimte op de begane grond voor flexibiliteit: ideaal voor thuiswerken, het uitvoeren van een hobby of goed te gebruiken als speelkamer.

De woonkeuken is netjes uitgevoerd en voorzien van diverse inbouwapparatuur. De woning beschikt verder over in totaal 3 slaapkamers, een praktische bijkeuken en voldoende bergruimte. Ook aan comfort is gedacht met een moderne Intergas HRE combiketel uit 2019.

Buiten is het minstens zo aantrekkelijk. Het royale perceel biedt volop vrijheid, groen en privacy. De vrijstaande garage/schuur maakt het geheel compleet en is perfect voor opslag, klussen of het stallen van voertuigen.

Kortom: een sfeervolle en veelzijdige woning voor wie ruim wil wonen, werken aan huis wil combineren of gewoon wil genieten van rust en ruimte.
Benieuwd naar de mogelijkheden van deze bijzondere plek? Neem contact met ons op voor een bezichtiging en laat je verrassen!

Indeling

Entree, trapopgang met meterkast, kantoor/hobbyruimte, rechthoekige woonkamer met toegangsdeur naar provisiekelder, dichte woonkeuken met L-vormige inbouwkeuken voorzien van diverse inbouwapparatuur en tuindeuren naar terras en tuin, royale slaapkamer, badkamer met wandcloset, wastafelmeubel, ruime inloopdouche en designradiator, bijkeuken/achteringang met opstelplaats cv-ketel en wasmachine/droger, wandcloset met fontein, inpandige berging/provisieruimte.

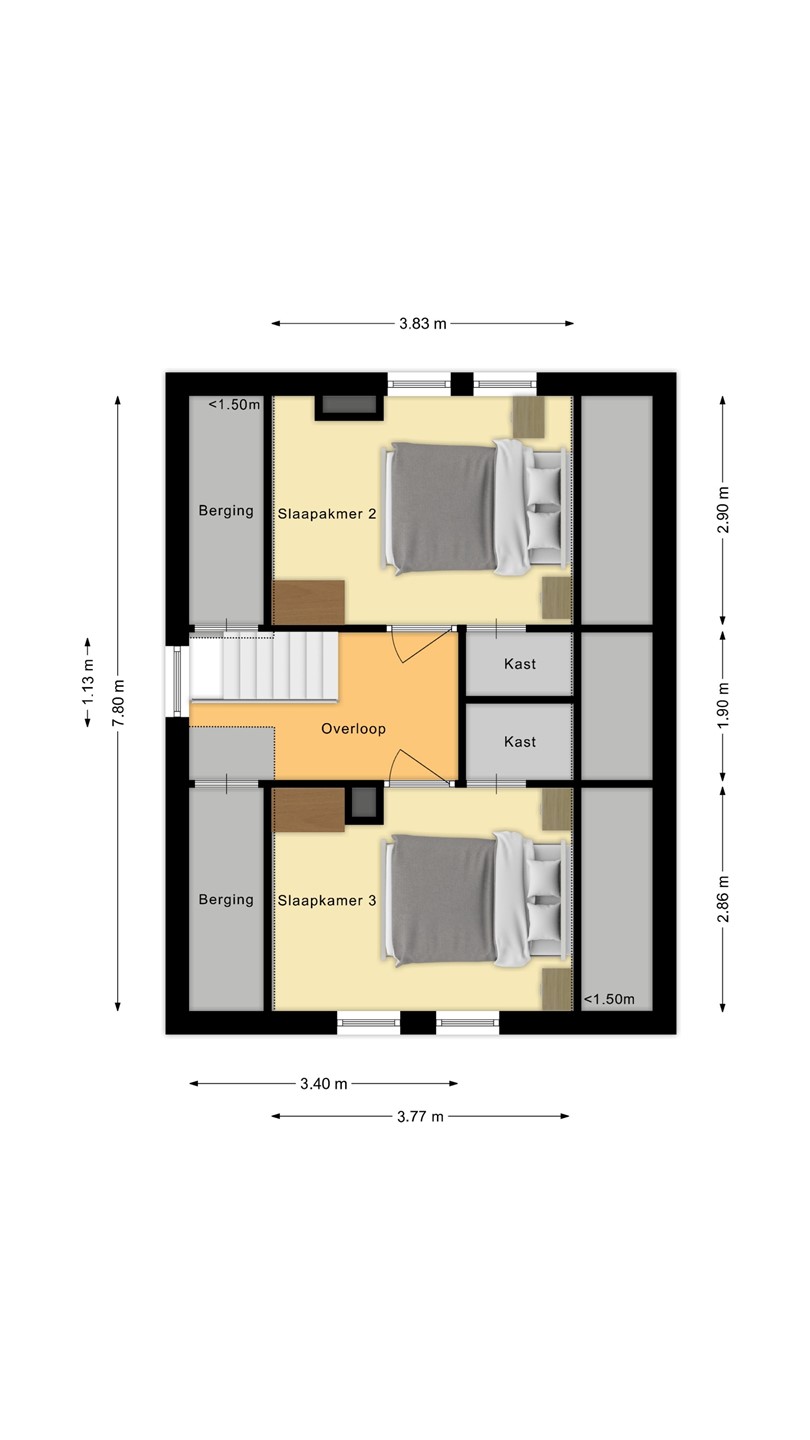
Eerste verdieping

Overloop met kleine bergruimte achter knieschotten, 2 slaapkamers 1 aan voorzijde en 1 aan achterzijde.

Tweede verdieping

Luikje naar niet bevloerde kleine zolderruimte.

Overige verdiepingen

Bijgebouwen:
- Vrijstaande garage/schuur met een inwendige afmeting van ca. 10.95 x 4.87 meter.

Bijzonderheden

Enkele wetenswaardigheden:
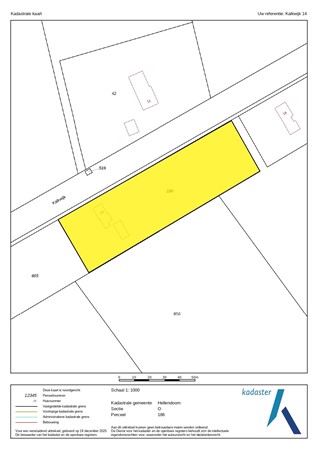
- Gelegen op een zeer ruim perceel van maar liefst 5260 m² eigen grond;
- Bad- en slaapkamer aanwezig op de begane grond, gelijkvloers wonen behoort tot de mogelijkheden;
- Nette inbouwkeuken voorzien van diverse inbouwapparatuur;
- Praktische kantoor-/hobbyruimte op de begane grond;
- 2 slaapkamers aanwezig op de verdieping;
- Voorzien van een praktische bijkeuken met opstelling voor wasmachine en droger;
- CV installatie: Intergas HRE combi uit 2019;
- Royale vrijstaande garage/schuur aanwezig;
- Kortom: een goed onderhouden vrijstaande woning met veel ruimte, rust en privacy.

Kaart

Kenmerken

Overdracht

Referentienummer
06726
Vraagprijs
€ 439.000,- k.k.
Elektra
€ 31,85
Gas
€ 164,08
Status
Verkocht onder voorbehoud
Aanvaarding
In overleg
Aangeboden sinds
Maandag 2 februari 2026
Laatste wijziging
Vrijdag 6 maart 2026

Bouw

Type object
Woonhuis, eengezinswoning, vrijstaande woning
Soort bouw
Bestaande bouw
Toegankelijkheid
Senioren
Bouwperiode
1960
Dakbedekking
Bitumen
Dakpannen
Type dak
Zadeldak
Isolatievormen
Gedeeltelijk dubbel glas
HR-glas

Oppervlaktes en inhoud

Perceeloppervlakte
5.260 m²
Woonoppervlakte
115 m²
Inhoud
429 m³
Oppervlakte overige inpandige ruimten
4 m²
Oppervlakte externe bergruimte
54 m²
Oppervlakte gebouwgebonden buitenruimte
0,5 m²

Indeling

Aantal bouwlagen
3 (en 1 kelder)
Aantal kamers
5 (waarvan 4 slaapkamers)
Aantal badkamers
1 (en 1 apart toilet)

Locatie

Ligging
Aan rustige weg
Open ligging
Platteland
Vrij uitzicht

Energieverbruik

Energielabel
E

CV ketel

CV ketel
Intergas
Warmtebron
Gas
Bouwjaar
2019
Combiketel
Ja
Eigendom
Eigendom

Uitrusting

Warm water
CV-ketel
Verwarmingssysteem
Centrale verwarming
Badkamervoorzieningen
Inloopdouche
Toilet
Wastafelmeubel
Parkeergelegenheid
Vrijstaande houten garage
Heeft kabel-tv
Ja
Heeft een garage
Ja
Telefoonaansluiting aanwezig
Ja
Beschikt over een internetverbinding
Ja

Kadastrale gegevens

Kadastrale aanduiding
Hellendoorn O 186
Perceeloppervlakte
5.260 m²
Omvang
Geheel perceel
Eigendomsituatie
Eigen grond

Brochure(s) en overige bijlagen

Kalkwijk 14, 7687 AX DAARLERVEEN (3) Download