Verkocht onder voorbehoud:Heemsteres 35, 7683 AL Den Ham - Foto
Verkocht onder voorbehoud
+36

Heemsteres 35 7683 AL Den Ham € 309.000,- k.k.

  • Woonhuis
  • 4 kamers
  • 3 slaapkamers
  • 1 badkamer
  • Bouwjaar 1966
  • 349 m² perceeloppervlakte
  • 86 m² gebruiksoppervlakte
  • D Energielabel D

Beschrijving

Deze hoekwoning ligt op een rustige plek met vrij uitzicht over een groen plantsoen aan de voorzijde. Het perceel van maar liefst 349 m² is bijzonder royaal voor een hoekwoning en heeft een diepe achtertuin waar u heerlijk kunt genieten van buiten.

De woning heeft een lichte en sfeervolle uitstraling en biedt volop mogelijkheden om het naar eigen smaak in te richten. De ruime tuin en de vrijstaande stenen berging/fietsenschuur maken het geheel compleet en bieden extra bergruimte.

Gelegen in een rustige, groene omgeving, is dit een praktische woning met veel ruimte en privacy.

Benieuwd geworden? Neem dan contact op met ons kantoor voor het maken van een afspraak.

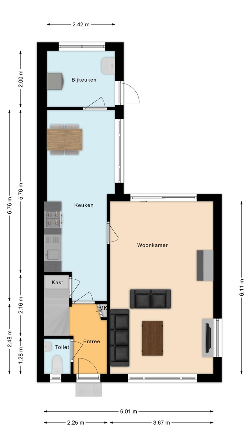
Indeling

Entree, staand toilet met fontein, trapopgang, meterkast, doorgang naar woonkeuken met trapkast en eenvoudige inbouwkeuken voorzien van enige inbouwapparatuur, bijkeuken met opstelplaats wasmachine, uitstortgootsteen en achteringang, rechthoekige doorzon woonkamer met schuifpui en sfeervolle houtkachel.

Eerste verdieping

Overloop met vlizotrap naar 2e verdieping, 3 slaapkamers waarvan 1 met deur naar platte dak, eenvoudige kleine badkamer met wastafel en douche-inrichting.

Tweede verdieping

Bereikbaar met vlizotrap naar bevloerde zolderruimte met opstelplaats voor cv-ketel.

Overige verdiepingen

Bijgebouwen:
- Vrijstaande stenen berging/fietsenschuur met een inwendige afmeting van ca. 3.00 x 2.50 meter.

Bijzonderheden

Enkele wetenswaardigheden:
- Ruim perceel van 349 m²;
- Vrij uitzicht over plantsoen;
- Sfeervolle houtkachel in de woonkamer;
- Dakgoten zijn vernieuwd in 2026;
- De muur is na-geïsoleerd in 2025;
- Kortom: een ruime hoekwoning gelegen op een ruim perceel!

Kaart

Kenmerken

Overdracht

Referentienummer
06731
Vraagprijs
€ 309.000,- k.k.
Elektra
€ 40,39
Gas
€ 145,95
Water
€ 16,-
Status
Verkocht onder voorbehoud
Aanvaarding
In overleg
Aangeboden sinds
Vrijdag 20 maart 2026
Laatste wijziging
Vrijdag 17 april 2026

Bouw

Type object
Woonhuis, eengezinswoning, hoekwoning
Soort bouw
Bestaande bouw
Bouwperiode
1966
Dakbedekking
Bitumen
Dakpannen
Type dak
Dwarskap
Isolatievormen
Dakisolatie
Gedeeltelijk dubbel glas
HR-glas
Muurisolatie
Vloerisolatie

Oppervlaktes en inhoud

Perceeloppervlakte
349 m²
Woonoppervlakte
86 m²
Inhoud
346 m³
Oppervlakte overige inpandige ruimten
6 m²
Oppervlakte externe bergruimte
7 m²
Oppervlakte gebouwgebonden buitenruimte
17 m²

Indeling

Aantal bouwlagen
3
Aantal kamers
4 (waarvan 3 slaapkamers)
Aantal badkamers
1 (en 1 apart toilet)

Locatie

Ligging
Aan rustige weg
In woonwijk
Nabij school
Vrij uitzicht

Energieverbruik

Energielabel
D

CV ketel

CV ketel
Nefit HR proline
Warmtebron
Gas
Bouwjaar
2009
Eigendom
Eigendom

Uitrusting

Warm water
CV-ketel
Verwarmingssysteem
Centrale verwarming
Houtkachel
Keukenvoorzieningen
Inbouwapparatuur
Badkamervoorzieningen
Douche
Wastafel
Heeft kabel-tv
Ja
Glasvezelaansluiting aanwezig
Ja
Telefoonaansluiting aanwezig
Ja
Beschikt over een internetverbinding
Ja
Heeft schuur/berging
Ja

Kadastrale gegevens

Kadastrale aanduiding
Den Ham F 1364
Perceeloppervlakte
349 m²
Omvang
Geheel perceel
Eigendomsituatie
Eigen grond

Brochure(s) en overige bijlagen

Heemsteres 35, 7683 AL DEN HAM (3) Download