Verkocht:Schoolstraat 55, 7686 CM Geerdijk - Foto
Verkocht
+89

Schoolstraat 55 7686 CM Geerdijk

  • Woonhuis
  • 5 kamers
  • 4 slaapkamers
  • 1 badkamers
  • Bouwjaar 1965
  • 960 m² perceeloppervlakte
  • 143 m² gebruiksoppervlakte
  • C Energielabel C

Beschrijving

Wonen aan het water met vrij uitzicht en volop ruimte – dat klinkt als een droom, en precies dát biedt deze verrassend royale twee-onder-een-kapwoning. Hier geniet je dagelijks van de rust van het kanaal aan de voorzijde én de weidsheid van de landerijen aan de achterzijde.

De woning is door de jaren heen volledig gemoderniseerd en verkeert in uitstekende staat. In 2024 is de fundering volledig vernieuwd en voorzien van isolatie, daarnaast is de begane grond uitgerust met vloerverwarming en een luxe keuken met alle noodzakelijke inbouwapparatuur. Ook de airco’s op de verdiepingen en de moderne afwerking maken dat je hier zó kunt intrekken.
Buiten is het minstens zo aantrekkelijk: een grote kavel van 960 m² eigen grond, een heerlijke tuin met fruitbomen, een vrijstaande schuur met zolderruimte, een dubbele carport én een royale overkapping waar je in alle rust van het buitenleven geniet.

In 2024 is de gehele benedenverdieping gerenoveerd en is de volledige fundering vervangen door een geoptimaliseerde en toekomstbestendige constructie. Tevens is er een nieuwe voorgevel geplaatst en zijn alle buitenmuren geïsoleerd. De volledige rapportage inclusief garantieverklaring is aanwezig en inzichtelijk voor serieus geïnteresseerden.

Kortom: een comfortabele, instapklare woning met veel mogelijkheden op een prachtige plek met veel ruimte, privacy en een schitterend uitzicht. Kom het zelf ervaren en plan vandaag nog een bezichtiging!

Indeling

Ruime entree/hal, trapopgang naar 1e verdieping, meterkast, ruime living met erker en houtkachel, portaal met opstelplaats
cv-ketel (2025) en toegang tot ruime half verdiepte kelderruimte, dichte woonkeuken met tuindeuren naar terras en moderne, luxe inbouwkeuken voorzien van alle noodzakelijke inbouwapparatuur, bijkeuken met opstelplaats wasmachine/droger, badkamer met douche-inrichting, ligbad en wastafelmeubel, afzonderlijk toilet met fontein, hal met kastruimte en achteringang, kantoorruimte, schuurruimte/hobbyruimte met vaste trap naar royale zolderruimte.

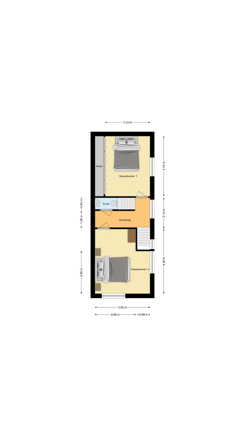
Eerste verdieping

Overloop met modern toilet met fontein, 2 ruime slaapkamers waarvan 1 met een kastenwand en voorste slaapkamer voorzien van een airco-installatie (2020).

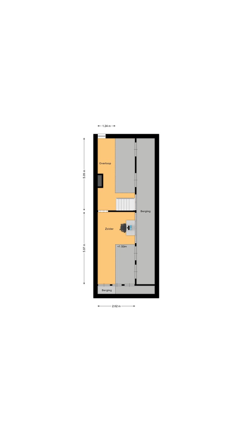
Tweede verdieping

Bereikbaar met vaste trap naar zolderruimte en 3e slaapkamer met kastruimte, bergruimte achter de knieschotten en airco-installatie (2020) (2e verdieping voorzien van een groot dakkapel).

Overige verdiepingen

Bijgebouwen:
- Vrijstaande houten schuur met een inwendige afmeting van ca. 4.85 x 5.87 meter met zolderruimte met een breedte van 6.05 x 1.65 meter op 1.50 hoogte.
- Overkapping achterzijde met een afmeting van ca. 5.90 x 3.60 meter.
- Dubbele carport voor de schuur met afmeting van ca. 5.10 x 5.80

Bijzonderheden

Enkele wetenswaardigheden:
- Prachtige locatie aan het kanaal, vrij uitzicht aan de voor- en achterzijde;
- Gelegen op een grote kavel van 960 m² eigen grond;
- Diverse fruitbomen aanwezig in de achtertuin, vrij uitzicht over de landerijen;
- In 2024 is de woning voorzien van een compleet nieuwe fundering met isolatie en daarbij is tevens de gehele benedenverdieping gerenoveerd;
- Vloerverwarming gehele begane grond;
- Luxe moderne inbouwkeuken uit 2024;
- 3 slaapkamers aanwezig (4e slaapkamer eenvoudig te realiseren);
- Op de eerste en tweede verdieping is een airco-installatie aanwezig (2020);
- Kantoorruimte (begane grond) en ruime hobbyruimte aanwezig;
- Vrijstaande houten schuur met dubbele carport;
- De woning is door de jaren heen volledig gemoderniseerd en gerenoveerd;
- Kortom: een verrassend ruime woning met veel mogelijkheden op een prachtige locatie met veel rust, ruimte en privacy!

Kaart

Kenmerken

Overdracht

Referentienummer
06655
Vraagprijs
€ 415.000,- k.k.
Elektra
€ 100,-
Gas
€ 188,-
Water
€ 25,-
Status
Verkocht
Aanvaarding
In overleg
Aangeboden sinds
Maandag 6 oktober 2025
Laatste wijziging
Vrijdag 9 januari 2026

Bouw

Type object
Woonhuis, eengezinswoning, twee onder een kap woning
Soort bouw
Bestaande bouw
Bouwperiode
1965
Dakbedekking
Bitumen
Dakpannen
Type dak
Zadeldak
Isolatievormen
Dakisolatie
Dubbel glas
Muurisolatie
Vloerisolatie

Oppervlaktes en inhoud

Perceeloppervlakte
960 m²
Woonoppervlakte
143 m²
Inhoud
789 m³
Oppervlakte overige inpandige ruimten
55 m²
Oppervlakte externe bergruimte
39 m²

Indeling

Aantal bouwlagen
3
Aantal kamers
5 (waarvan 4 slaapkamers)
Aantal badkamers
1 (en 2 aparte toiletten)

Locatie

Ligging
Aan rustige weg
Aan vaarwater
Aan water
Platteland
Vrij uitzicht

Energieverbruik

Energielabel
C

CV ketel

CV ketel
Intergas HRE
Warmtebron
Gas
Bouwjaar
2025
Combiketel
Ja
Eigendom
Eigendom

Uitrusting

Warm water
CV-ketel
Verwarmingssysteem
Centrale verwarming
Houtkachel
Vloerverwarming (gedeeltelijk)
Badkamervoorzieningen
Douche
Ligbad
Wastafelmeubel
Parkeergelegenheid
Carport
Heeft airco
Ja
Heeft kabel-tv
Ja
Telefoonaansluiting aanwezig
Ja
Beschikt over een internetverbinding
Ja
Heeft schuur/berging
Ja

Kadastrale gegevens

Kadastrale aanduiding
Den Ham K 437
Perceeloppervlakte
960 m²
Omvang
Geheel perceel
Eigendomsituatie
Eigen grond
Kadastrale aanduiding
Eigendomsituatie
Eigen grond

Brochure(s) en overige bijlagen

Schoolstraat 55, 7686 CM GEERDIJK (3) Download