Verkocht:Beukenhoek 27, 7681 HJ Vroomshoop - Foto
Verkocht
+43

Beukenhoek 27 7681 HJ Vroomshoop

  • Woonhuis
  • 5 kamers
  • 4 slaapkamers
  • 1 badkamers
  • Bouwjaar 1980
  • 326 m² perceeloppervlakte
  • 102 m² gebruiksoppervlakte
  • B Energielabel B

Beschrijving

De mogelijkheid om gelijkvloers te wonen, 4 slaapkamers, een ruim perceel en een ontzettend goede ligging. Deze woning aan Beukenhoek 27 te Vroomshoop heeft het allemaal! Lees je mee?

Deze 2-onder-1-kap woning is keurig onderhouden en met veel plezier bewoond. Op de begane grond zijn een slaapkamer en badkamer aanwezig waardoor hier de mogelijkheid bestaat om gelijkvloers te wonen. Ben je daar nog niet aan toe? De slaapkamer kan uiteraard ook uitstekend dienst doen als speelkamer, hobbyruimte of kantoor. Liever meer ruimte in de woonkamer en keuken? Ook dat is mogelijk! Zo groeit deze woning helemaal mee met jouw woonwensen in verschillende fasen van je leven. De moderne luxe keuken, vernieuwd in 2009, is voorzien van alle inbouwapparatuur en biedt toegang tot het zongerichte terras.

Naast de fijne, praktische binnenkant biedt ook de buitenruimte genoeg om blij van te worden! Zo is de woning gelegen op een heerlijk ruim perceel van 326 m² eigen grond en is de achtertuin gelegen op het zuidwesten waardoor je hier kunt genieten van zowel zon als schaduw. Ook de ligging is meer dan goed te noemen! De woning ligt aan een autoluw straatje en is op korte afstand gelegen van diverse voorzieningen zoals scholen, horeca en winkels.

Enthousiast geworden? Neem dan contact met ons op, wij laten de woning graag aan je zien tijdens een bezichtiging!

Indeling

Entree, modern wandcloset met fontein, meterkast, provisiekast, trapopgang, moderne badkamer met ruime douche-plek en dubbel wastafelmeubel, rechthoekige woonkamer, ruime slaapkamer, dichte keuken met moderne rechthoekige inbouwkeuken voorzien van diverse inbouwapparatuur, achteringang/deur naar zongericht terras met tuin.

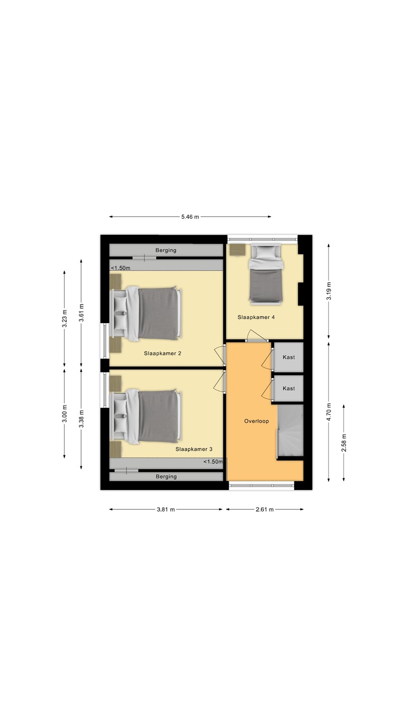
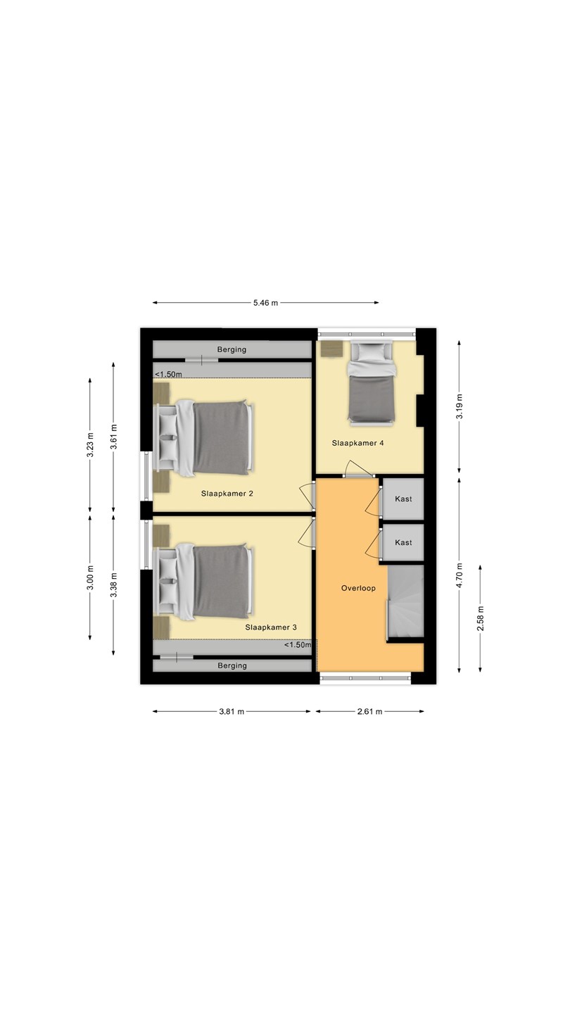
Eerste verdieping

Overloop met dakkapel aan voorzijde, vaste kast met opstelplaats cv-ketel, extra vaste kast, 2 ruime slaapkamers en 3e slaapkamer met dakkapel aan achterzijde.

Tweede verdieping

Luikje naar gedeeltelijk bevloerde zolderruimte.

Overige verdiepingen

Bijgebouwen:
- Garage met een inwendige afmeting van ca. 8.10 x 3.430 meter.
- Carport met een afmeting van ca. 5.30 x 3.45 meter.

Bijzonderheden

Enkele wetenswaardigheden:
- Gelegen op een fantastische locatie, aan een autoluw straatje;
- Groene woonomgeving, op korte afstand van vele voorzieningen;
- Mogelijkheid tot gelijkvloers wonen; slaap- en badkamer aanwezig op de begane grond;
- In totaal 4 slaapkamers aanwezig;
- Garage met carport;
- Achtertuin gelegen op het zuidwesten met veel privacy;
- Moderne, luxe badkamer en keuken;
- Voorzien van 10 zonnepanelen (2022);
- Door de indeling geschikt voor vele doelgroepen, zowel gezinnen als senioren!

Kaart

Kenmerken

Overdracht

Referentienummer
06673
Vraagprijs
€ 339.000,- k.k.
Elektra
€ 60,73
Gas
€ 72,53
Status
Verkocht
Aanvaarding
In overleg
Aangeboden sinds
Vrijdag 2 mei 2025
Laatste wijziging
Woensdag 25 juni 2025

Bouw

Type object
Woonhuis, eengezinswoning, twee onder een kap woning
Soort bouw
Bestaande bouw
Toegankelijkheid
Senioren
Bouwperiode
1980
Dakbedekking
Dakpannen
Type dak
Dwarskap
Isolatievormen
Dakisolatie
Grotendeels dubbel glas
Muurisolatie

Oppervlaktes en inhoud

Perceeloppervlakte
326 m²
Woonoppervlakte
102 m²
Inhoud
450 m³
Oppervlakte overige inpandige ruimten
28 m²
Oppervlakte gebouwgebonden buitenruimte
18 m²

Indeling

Aantal bouwlagen
3
Aantal kamers
5 (waarvan 4 slaapkamers)
Aantal badkamers
1 (en 1 apart toilet)

Locatie

Ligging
Aan rustige weg
Dichtbij openbaar vervoer
In woonwijk
Nabij school

Energieverbruik

Energielabel
B

CV ketel

CV ketel
Nefit
Warmtebron
Gas
Bouwjaar
2009
Combiketel
Ja
Eigendom
Eigendom

Uitrusting

Warm water
CV-ketel
Verwarmingssysteem
Centrale verwarming
Badkamervoorzieningen
Douche
Dubbele wastafel
Parkeergelegenheid
Aangebouwde stenen garage
Carport
Heeft kabel-tv
Ja
Heeft een garage
Ja
Telefoonaansluiting aanwezig
Ja
Beschikt over een internetverbinding
Ja

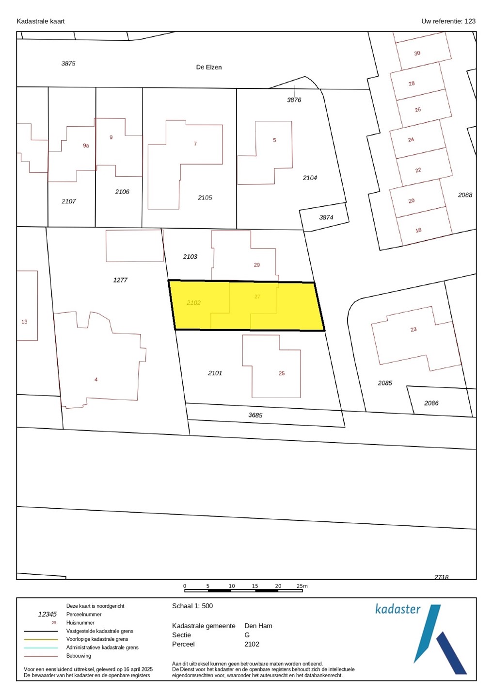
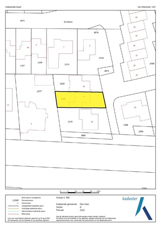
Kadastrale gegevens

Kadastrale aanduiding
Twenterand G 2102
Perceeloppervlakte
326 m²
Omvang
Geheel perceel
Eigendomsituatie
Eigen grond

Brochure(s) en overige bijlagen

Beukenhoek 27, 7681 HJ VROOMSHOOP (2) Download