Verkocht:Nieuwstraat 27, 7681 ER Vroomshoop - Foto
Verkocht
+83

Nieuwstraat 27 7681 ER Vroomshoop

  • Woonhuis
  • 5 kamers
  • 4 slaapkamers
  • 1 badkamers
  • Bouwjaar 1980
  • 522 m² perceeloppervlakte
  • 134 m² gebruiksoppervlakte
  • B Energielabel B

Beschrijving

Deze gemoderniseerde en uitgebouwde woning biedt veel ruimte, comfort en luxe. Sinds 2019 is het huis volledig gemoderniseerd, uitgebouwd en verduurzaamd. Het staat op een royaal perceel van 522 m² eigen grond, waardoor je zowel binnen als buiten veel ruimte hebt.

De ruime woonkamer heeft veel lichtinval en is verbonden met de moderne woonkeuken uit 2019, voorzien van een kookeiland en luxe inbouwapparatuur. De badkamer, vernieuwd in 2024, heeft vloerverwarming, net als de gehele begane grond. De woning beschikt over vier ruime slaapkamers, waarvan één is uitgerust met een airco-installatie.

De achtertuin ligt op het zuidwesten en beschikt over een royale overkapping met een houtkachel en glazen schuifwanden. Deze ruimte maakt het mogelijk om het gehele jaar door te genieten van het buitenleven. Daarnaast is er een vrijstaande she shed, ideaal voor zowel logees als een plek voor hobby’s. Ook is er een garage met afzonderlijke schuurruimte en ruime carport aanwezig.

Deze woning biedt alles wat je zoekt: moderne voorzieningen, veel ruimte en praktische extra’s. Maak snel een afspraak voor een bezichtiging!

Indeling

Entree, meterkast, wandcloset met fontein (2019), woonkeuken gesitueerd aan de voorzijde van de woning met een keukenwand met alle inbouwapparatuur en een kookeiland en voldoende ruimte voor een eettafel, portaal met vaste kast en trapopgang naar 1e verdieping, aangebouwde tuingerichte woonkamer met pelletkachel en tuindeuren naar zongerichte achtertuin. Vloerverwarming aanwezig gehele begane grond m.u.v. trapkast.

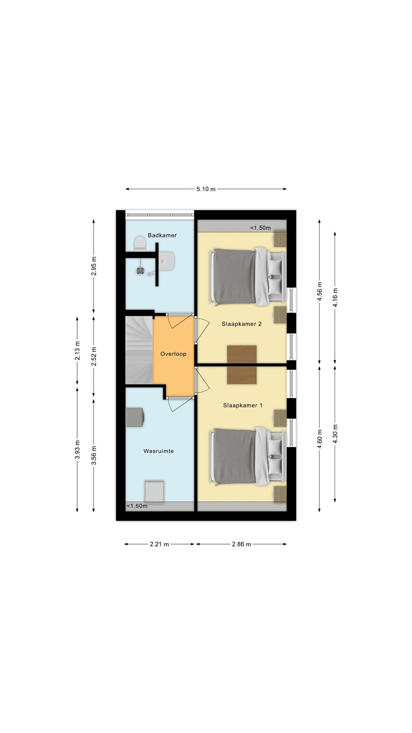
Eerste verdieping

Overloop, 3 slaapkamers (1 slaapkamer airco 2024), moderne badkamer (2024) met douche-inrichting, 2e wandcloset, wastafelmeubel en elektrische vloerverwarming.

Tweede verdieping

Bereikbaar met vaste trap naar 2e verdieping met afzonderlijke opstelplaats voor de elektrische CV-ketel en boiler. Afzonderlijke royale 4e slaapkamer met inbouwkast en bergruimte achter de knieschotten.

Overige verdiepingen

- Garage met een inwendige afmeting van ca. 2.80 x 7.80 meter halfsteens met keukenblokje met afzuigkap.
- Aangebouwde geïsoleerde schuurruimte achter garage met een inwendige afmeting van ca. 2.68 x 2.64 meter.
- Royale carport gebouwd in 2015 met een afmeting van ca. 6.00 x gemiddeld 4.20 meter.
- Royale overkapping met glazen schuifwanden met een afmeting van ca. 3.35 x 6.80 meter met een fraaie houtkachel en elektrisch bedienbare zonwering aan
westzijde overkapping.
- Vrijstaande she shed met een inwendige afmeting van ca. 3.25 x 9.00 meter compleet ingericht. Eventueel te gebruiken als hobbyruimte, man-cave etc. Voorzien
van Itho cv-ketel 2019 met spiraalboiler en radiatoren, kunststofkozijnen en compleet ingerichte badkamer, slaapkamer en woonkamer met keukenblok.

Bijzonderheden

Enkele wetenswaardigheden:
- Compleet gemoderniseerd en verbouwd vanaf 2019;
- Energielabel B;
- 4 ruime slaapkamers aanwezig (waarvan 1 voorzien van airco);
- Nieuwe luxe moderne badkamer (2024);
- Luxe keuken met kookeiland, vernieuwd in 2019;
- (Nagenoeg) de gehele begane grond is voorzien van vloerverwarming;
- Gelegen op een ruim perceel van 522 m²;
- Achtertuin gelegen op het zuidwesten met overkapping en vrijstaande she shed;
- Voorzien van 26 zonnepanelen (lease).

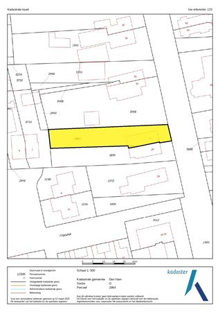
Kaart

Kenmerken

Overdracht

Referentienummer
06663
Vraagprijs
€ 439.000,- k.k.
Elektra
€ 108,38
Gas
€ 38,33
Water
€ 20,55
Status
Verkocht
Aanvaarding
In overleg
Aangeboden sinds
Vrijdag 4 april 2025
Laatste wijziging
Woensdag 7 mei 2025

Bouw

Type object
Woonhuis, eengezinswoning, twee onder een kap woning
Soort bouw
Bestaande bouw
Bouwperiode
1980
Dakbedekking
Bitumen
Dakpannen
Type dak
Mansardedak
Isolatievormen
Dakisolatie
Dubbel glas
HR-glas
Muurisolatie
Vloerisolatie

Oppervlaktes en inhoud

Perceeloppervlakte
522 m²
Woonoppervlakte
134 m²
Inhoud
466 m³
Oppervlakte externe bergruimte
52 m²
Oppervlakte gebouwgebonden buitenruimte
24 m²

Indeling

Aantal bouwlagen
3
Aantal kamers
5 (waarvan 4 slaapkamers)
Aantal badkamers
1 (en 1 apart toilet)

Locatie

Ligging
Dichtbij openbaar vervoer
In woonwijk
Nabij school

Energieverbruik

Energielabel
B

CV ketel

CV ketel
M Tronic 7000EU
Warmtebron
Elektriciteit
Bouwjaar
2021
Combiketel
Ja
Eigendom
Eigendom

Uitrusting

Warm water
CV-ketel
Elektrische boiler
Verwarmingssysteem
Airconditioning
Centrale verwarming
Pelletkachel
Vloerverwarming (gedeeltelijk)
Keukenvoorzieningen
Inbouwapparatuur
Kookeiland
Badkamervoorzieningen
Douche
Toilet
Vloerverwarming
Wastafelmeubel
Parkeergelegenheid
Aangebouwde stenen garage
Carport
Heeft airco
Ja
Heeft kabel-tv
Ja
Glasvezelaansluiting aanwezig
Ja
Heeft een garage
Ja
Telefoonaansluiting aanwezig
Ja
Beschikt over een internetverbinding
Ja
Heeft schuur/berging
Ja
Heeft een dakraam
Ja
Heeft zonwering
Ja

Kadastrale gegevens

Kadastrale aanduiding
Den Ham G 2964
Perceeloppervlakte
520 m²
Omvang
Geheel perceel
Eigendomsituatie
Eigen grond
Kadastrale aanduiding
Den Ham G 3840
Perceeloppervlakte
2 m²
Omvang
Geheel perceel
Eigendomsituatie
Eigen grond

Brochure(s) en overige bijlagen

Nieuwstraat 27, 7681 ER VROOMSHOOP (3) Download