Verkocht onder voorbehoud:Zwolsekanaal 20, 7681 ED Vroomshoop - Foto
Verkocht onder voorbehoud
+59

Zwolsekanaal 20 7681 ED Vroomshoop € 369.000,- k.k.

  • Woonhuis
  • 5 kamers
  • 4 slaapkamers
  • 2 badkamers
  • Bouwjaar 1971
  • 401 m² perceeloppervlakte
  • 119 m² gebruiksoppervlakte
  • C Energielabel C

Beschrijving

Op een prachtige locatie aan het kanaal staat deze goed onderhouden vrijstaande woning met garage en extra schuurruimte. De woning biedt verrassend veel ruimte en comfort, waaronder de mogelijkheid om gelijkvloers te wonen dankzij een slaap-/werkkamer met aangrenzende badkamer op de begane grond. De lichte woonkamer met parketvloer en gashaard zorgt voor een prettige leefomgeving, terwijl de dichte keuken en bijkeuken zorgen voor een praktische aanvulling.

Op de verdiepingen bevinden zich meerdere slaapkamers en een tweede badkamer, wat de woning zeer geschikt maakt voor gezinnen. De vaste trap naar de zolder leidt naar een ruime, afgetimmerde zolderverdieping waar extra slaapkamers gerealiseerd kunnen worden. Ook vind je er de opstelplaats voor de cv-ketel en extra bergruimte.

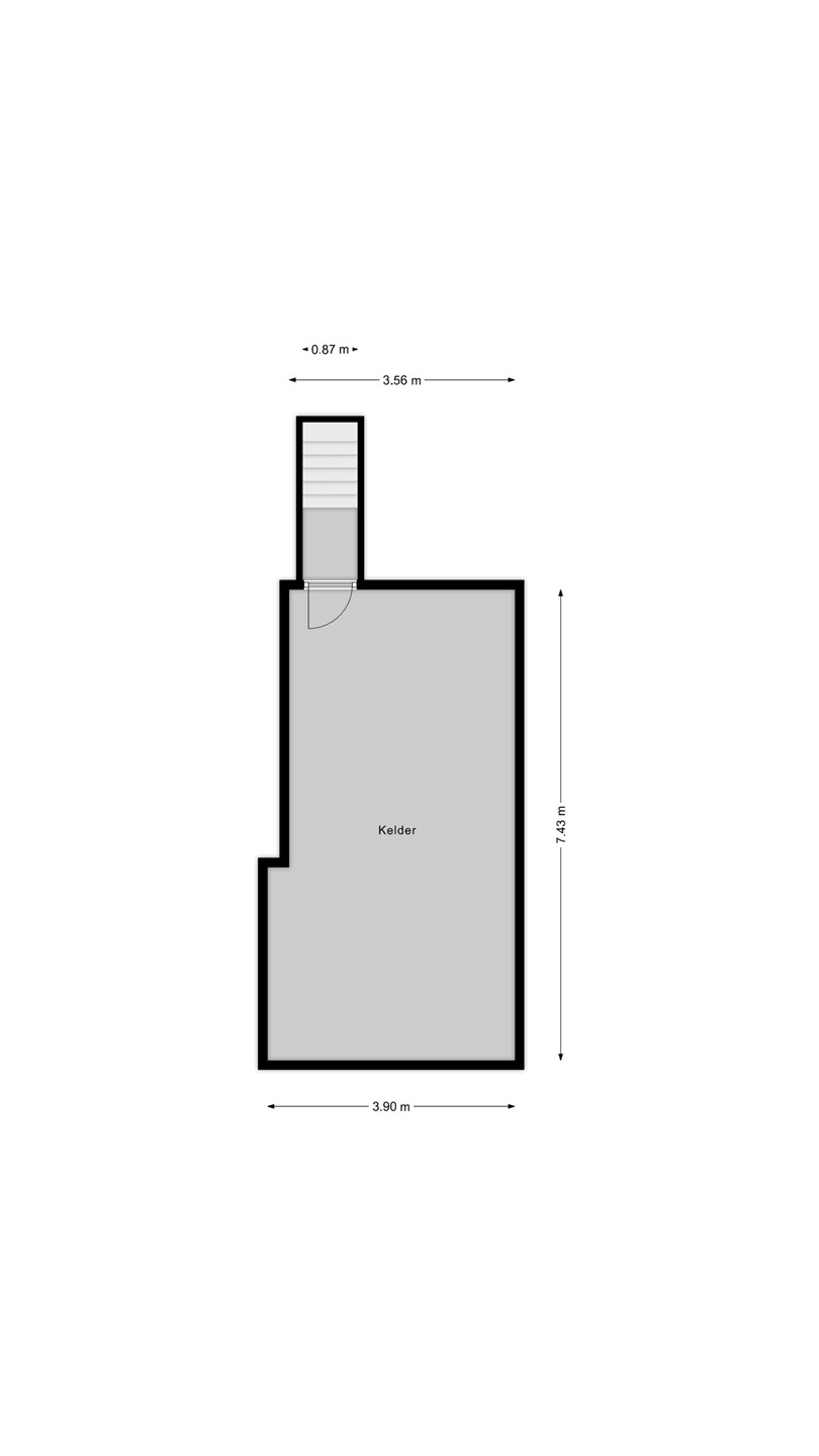
Buiten beschikt de woning over een voor-, zij- en achtertuin, waarbij de voor- en zijtuin in 2024 volledig opnieuw zijn aangelegd door een hovenier. Daarnaast is er een aangebouwde garage, een achtergelegen schuurruimte en een grote kelderruimte die via buitenom bereikbaar is

Kortom: een goed onderhouden vrijstaande woning op een fraaie locatie aan het Zwolsekanaal, met volop ruimte en mogelijkheden.

Enthousiast geworden? Neem dan contact met ons op, wij laten de woning graag aan je zien tijdens een bezichtiging!

Indeling

Entree/hal, wandcloset met fontein, trapopgang met kelderkast, meterkast, rechthoekige woonkamer met parketvloer en gashaard, dichte keuken met parketvloer en standaard keukenblok voorzien van enige inbouwapparatuur, bijkeuken/achteringang met opstelplaats boiler, kantoor/slaapkamertje met aangrenzende badkamer (2016) met wastafel, designradiator en douche-inrichting, doorgang vanuit de bijkeuken naar de garage met daarachter nog een extra schuurruimte.

Eerste verdieping

Overloop, 3 slaapkamers allen voorzien van een vaste kast(en) en 1 slaapkamer voorzien van een wastafel, badkamer (2006) met dubbel wastafelmeubel, 2e wandcloset en douche met cabine.

Tweede verdieping

Bereikbaar met vaste trap naar afgetimmerde zolderruimte met opstelplaats voor de cv-ketel en bergruimte achter de knieschotten.

Overige verdiepingen

Bijgebouwen:
- Aangebouwde garage met een inwendige afmeting van ca. 5.17 x 2.87 meter.
- Achtergelegen schuurruimte met een inwendige afmeting van ca. 3.58 x 3.39 meter.

Bijzonderheden

Enkele wetenswaardigheden:
- Gelegen op een werkelijk prachtige locatie aan het Zwolsekanaal;
- Volop rust, ruimte en groen op een perceel van 401 m² eigen grond;
- Bad- en slaapkamer aanwezig op de begane grond, gelijkvloers wonen behoort tot de mogelijkheden;
- Tweede badkamer en 3 slaapkamers op de eerste verdieping;
- De voor-en zijtuin is in 2024 aangelegd door een hoveniersbedrijf;
- Meterkast vernieuwd in 2020;
- Energielabel C;
- Nagenoeg alle ramen voorzien van elektrisch/handbediende rolluiken;
- Via buitenom bereikbare grote kelderruimte;
- Aangebouwde garage en vrijstaande schuurruimte aanwezig;
- Kortom; een goed onderhouden vrijstaande woning gelegen op een prachtige locatie aan het Zwolsekanaal!

Kaart

Kenmerken

Overdracht

Referentienummer
06730
Vraagprijs
€ 369.000,- k.k.
Elektra
€ 52,64
Gas
€ 220,94
Water
€ 11,-
Inrichting
Niet gestoffeerd
Inrichting
Niet gemeubileerd
Status
Verkocht onder voorbehoud
Aanvaarding
In overleg
Aangeboden sinds
Woensdag 28 januari 2026
Laatste wijziging
Vrijdag 6 maart 2026

Bouw

Type object
Woonhuis, eengezinswoning, vrijstaande woning
Soort bouw
Bestaande bouw
Bouwperiode
1971
Dakbedekking
Asbest
Dakpannen
Type dak
Zadeldak
Isolatievormen
Dakisolatie
HR-glas
Muurisolatie
Vloerisolatie

Oppervlaktes en inhoud

Perceeloppervlakte
401 m²
Woonoppervlakte
119 m²
Inhoud
549 m³
Oppervlakte overige inpandige ruimten
61 m²
Oppervlakte externe bergruimte
8 m²
Oppervlakte gebouwgebonden buitenruimte
11 m²

Indeling

Aantal bouwlagen
3
Aantal kamers
5 (waarvan 4 slaapkamers)
Aantal badkamers
2

Locatie

Ligging
Aan vaarwater
Dichtbij openbaar vervoer
Open ligging

Energieverbruik

Energielabel
C

CV ketel

CV ketel
AWB
Warmtebron
Gas
Bouwjaar
2000
Combiketel
Ja
Eigendom
Eigendom

Uitrusting

Warm water
CV-ketel
Elektrische boiler
Verwarmingssysteem
Centrale verwarming
Gashaard
Badkamervoorzieningen Badkamer 1
Douche
Wastafel
Badkamervoorzieningen Badkamer 2
Douche
Dubbele wastafel
Toilet
Parkeergelegenheid
Aangebouwde stenen garage
Heeft kabel-tv
Ja
Heeft een garage
Ja
Telefoonaansluiting aanwezig
Ja
Beschikt over een internetverbinding
Ja
Heeft schuur/berging
Ja

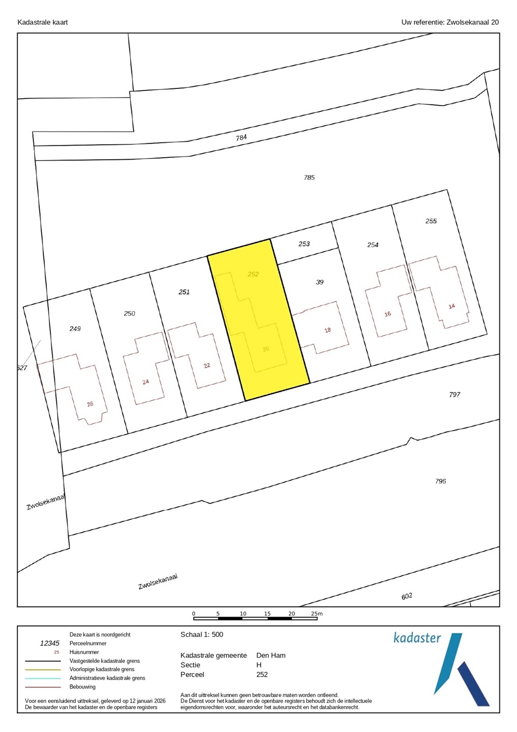
Kadastrale gegevens

Kadastrale aanduiding
Den Ham H 252
Perceeloppervlakte
401 m²
Omvang
Geheel perceel
Eigendomsituatie
Eigen grond

Brochure(s) en overige bijlagen

Zwolsekanaal 20, 7681 ED VROOMSHOOP (2) Download