Verkocht:Webbinkstraat 97, 7676 CW Westerhaar - Foto
Verkocht
+35

Webbinkstraat 97 7676 CW Westerhaar

  • Woonhuis
  • 4 kamers
  • 3 slaapkamers
  • 1 badkamers
  • Bouwjaar 1978
  • 196 m² perceeloppervlakte
  • 109 m² gebruiksoppervlakte
  • C Energielabel C

Beschrijving

Op zoek naar een woning met ruimte, mogelijkheden én een rustige ligging?
Aan de Webbinkstraat 97 in Westerhaar staat deze hoekwoning die je alle vrijheid biedt om er jouw eigen thuis van te maken. Gelegen aan een autoluwe straat en op een vrije hoek geniet je hier van extra privacy en een prettige woonomgeving.

De woning beschikt over drie slaapkamers en dankzij de vaste trap naar de tweede verdieping is er eenvoudig een vierde slaapkamer of hobbyruimte te realiseren. Ook buiten is er volop ruimte: de aangebouwde houten overkapping/schuur en de inpandige stenen berging maken het plaatje compleet.

Hoewel de woning op onderdelen gemoderniseerd dient te worden, is dit juist dé kans om alles geheel naar eigen smaak en stijl in te richten. Daarmee is dit huis een mooie optie voor zowel starters als gezinnen die hun woonwensen willen waarmaken.

Zie jij jezelf hier al wonen? Plan dan snel een bezichtiging en ontdek de mogelijkheden van Webbinkstraat 97 in Westerhaar!

Disclaimer: de getoonde 'artist impressions' zijn uitsluitend bedoeld om een idee te geven van hoe de woning mogelijk kan worden ingericht. Hier kunnen geen rechten aan worden ontleend.

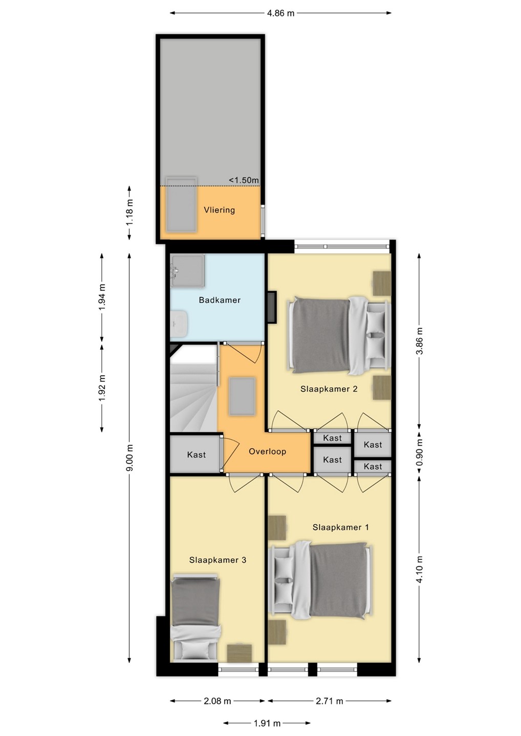
Indeling

Entree/hal met meterkast, woonkamer met trapkast, open keuken met eenvoudige inbouwkeuken voorzien van een afzuigkap, portaal met trapopgang naar eerste verdieping, staand toilet met fontein, bijkeuken/achteringang met opstelplaats voor wasmachine, berging via buitenom bereikbaar met losse trap naar zolderruimte.

Eerste verdieping

Overloop met vaste trap naar 2e verdieping en vaste kast, badkamer met wastafel, 2e staand toilet en douche-inrichting,
3 slaapkamers waarvan 2 met vaste kasten.

Tweede verdieping

Bereikbaar met vaste trap naar zolderruimte (eventueel geschikt te maken voor extra slaapkamers/hobbyruimte) met dakraam en opstelplaats voor cv-ketel.

Overige verdiepingen

Bijgebouwen:
- Aangebouwde houten overkapping/schuur met een afmeting van ca. 5.90 x 3.10 meter;
- Aangebouwde inpandige stenen berging met een afmeting van ca. 3.14 x 2.20 meter.

Bijzonderheden

Enkele wetenswaardigheden:
- Gelegen aan een autoluwe straat op een vrije hoek;
- 3 slaapkamers aanwezig;
- Vaste trap naar 2e verdieping, mogelijkheid voor 4e slaapkamer en/of hobbyruimte;
- Praktische inpandige berging (via buitenom bereikbaar) met zolderruimte;
- Zeer geschikt voor zowel starters als gezinnen;
- Er dient rekening te worden gehouden met renovatie-/moderniseringskosten;
- Van deze woning is geen lijst roerende zaken en vragenlijst beschikbaar;
- Er geldt een verhuurverbod/zelfbewoningsplicht voor een periode van 2 jaar.

Kaart

Kenmerken

Overdracht

Referentienummer
06704
Vraagprijs
€ 240.000,- k.k.
Inrichting
Niet gestoffeerd
Inrichting
Niet gemeubileerd
Status
Verkocht
Aanvaarding
In overleg
Aangeboden sinds
Maandag 29 september 2025
Laatste wijziging
Donderdag 13 november 2025

Bouw

Type object
Woonhuis, eengezinswoning, hoekwoning
Soort bouw
Bestaande bouw
Bouwperiode
1978
Dakbedekking
Dakpannen
Type dak
Zadeldak
Isolatievormen
Dakisolatie
Gedeeltelijk dubbel glas
Muurisolatie
Spouwmuren

Oppervlaktes en inhoud

Perceeloppervlakte
196 m²
Woonoppervlakte
109 m²
Inhoud
420 m³
Oppervlakte overige inpandige ruimten
7 m²
Oppervlakte gebouwgebonden buitenruimte
18 m²

Indeling

Aantal bouwlagen
3
Aantal kamers
4 (waarvan 3 slaapkamers)
Aantal badkamers
1 (en 1 apart toilet)

Locatie

Ligging
Aan rustige weg
Dichtbij openbaar vervoer
In woonwijk
Nabij school
Vrij uitzicht

Energieverbruik

Energielabel
C

CV ketel

CV ketel
Intergas HRE combi
Warmtebron
Gas
Bouwjaar
2017
Combiketel
Ja
Eigendom
Eigendom

Uitrusting

Warm water
CV-ketel
Verwarmingssysteem
Centrale verwarming
Badkamervoorzieningen
Douche
Toilet
Wastafel
Heeft kabel-tv
Ja
Telefoonaansluiting aanwezig
Ja
Beschikt over een internetverbinding
Ja
Heeft schuur/berging
Ja
Heeft een dakraam
Ja

Kadastrale gegevens

Kadastrale aanduiding
Vriezenveen B 8094
Perceeloppervlakte
196 m²
Omvang
Geheel perceel
Eigendomsituatie
Eigen grond

Brochure(s) en overige bijlagen

Webbinkstraat 97, 7676 CW WESTERHAAR (3) Download